Project Planning Guide

Get Your
Kitchen Makeover Started

Let us walk you through the process of planning.

1 Find Inspiration
2 Measure Your Space
3 Choose Your Collection
4 Purchase and Install
5 Leave a Review
Tab Image

Step 1

Find Inspiration

Follow interior designers and see trends on Instagram, Pinterest or TikTok for daily inspiration and tips.

Check out local kitchen showrooms to see and feel different materialscolors, and layouts in person.

Schedule a meeting with a kitchen designer for personalized recommendations and inspiration.

Tab Image

Step 2

Measure Your Space

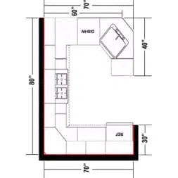
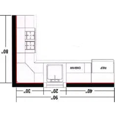
Grab a tape measure, pencil, and print our Measuring Guide.

  • Measure correctly!
  • Remember the old saying measure twice cut once.

Start clockwise when measuring your kitchen.

Measure doors & windows from the outside of the trim.

  • Put in the size of your appliances and placement in kitchen.
  • Measure your appliance from a wall to the center of the appliance.
Tab Image

Step 3

Choose Collection

Choose among bold, statement colors, light & airy colors, or warm, woody colors.

When choosing a kitchen collection based on door style, consider these six popular options:

  • Applied Molding – Decorative molding added to the door for an ornate and traditional look
  • Raised – Features a center panel that is elevated, creating depth and a classic, elegant style
  • Recessed -The center panel is set back within the frame, offering a clean and subtle design.
  • Shaker – Simple and versatile with a flat center panel and clean, square edges.
  • Slab – Smooth, flat doors without frames or panels, ideal for a modern, minimalist look.
  • Transitional – Blends elements of traditional and contemporary styles for a balanced and timeless appearance.
Tab Image

Step 4

Purchase and Install Your Kitchen Cabinets

Every kitchen collection will need the following add-ons to complete the full installation:

  • Quarter Round or Shoe Molding to hide shims when you level cabinets
  • Toe Kick Molding to finish off the bottom of the cabinets
  • Scribe molding to hide walls being out of level
  • Fillers needed when cabinets are against a wall.

You’ll have assembly videoes at your fingertips in every Kitchen Collection page. If you have any further questions, send us a message here

Tab Image

Step 5

Leave a Review

We’d love to hear about your experience and feedback on our collections! Feel free to write a review on the page of the Kitchen Collection you bought. It always helps us improve.

Send them over to us at info@frugalkitchens.com and we’ll feature them on our website!

Order a  Sample Door

Up to two (2) sample doors fully refundable with each full kitchen purchase.

Get a FREE
Kitchen Design

Follow these simple steps to get started!

  1. Fill out the form with your details
  2. Answer the Kitchen Questionnaire
  3. Schedule your Online Design Appointment

If you need assistance with your Design Request please contact customer service at 844-567-6700 Or send it to info@frugalcabinetsonline.com.

Let’s Get Started!